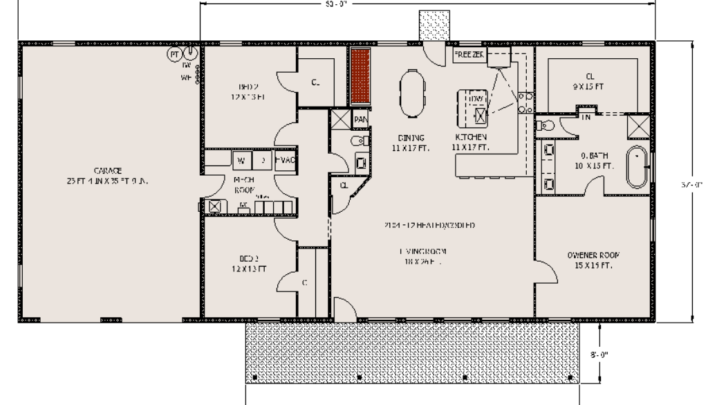
GrainField Farmhouse

2104 SQ FT. 3 Bed, 2 Bath, 1 Pantry